基本情况
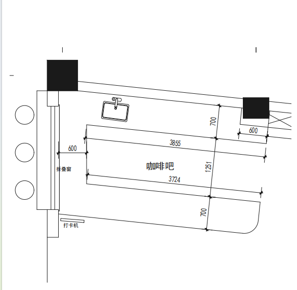
体育中心城市书房位于璧山区金剑路430号(体育中心乒乓球场对面门市),面积88.5㎡,藏书2000册,设有阅览座椅、书架、智能化设备等。咖啡吧位于城市书房一角,面积约11.46㎡,已配置吧台(长约4.324米)、操作台(长约5.624米)、外卖窗口(具体详见附图)。配套设施为吧台凳3张及两组沙发休闲区,初步具备咖啡饮品简餐基本经营条件。
招商内容
(一)承租方自行负责书房咖啡吧的日常经营,并承担经营费用。承租方在运营期间可以向读者提供简餐以及咖啡、糕点、冷饮、热饮、茶、果汁、轻食等多种无刺激性饮食服务。销售价格由承租方根据市场价格核定后略低于璧山区本地市场同类型商品定价,承租方不得随意调整价格。
(二)承租方在经营期内应向重庆市璧山区绿发集团支付合理的场地使用费,详情请电话咨询。
(三)经营时间:开放时间09:00~18:30(可延长)。
(四)读者服务:负责整个城市书房的清洁卫生和运营管理。
经营时应具备以下条件:
(一)承租方在承租后需重新办理营业执照,并取得《食品经营许可证》后才能经营;
(二)考虑到本招租场所为公益性场地,承租方商品定价需略低于璧山区本地市场同类型商品定价;
(三)承租方需配合重庆市璧山区文化和旅游发展委员会在其城市书房举办公益性活动的权益,由此产生的经营及时间成本不另计;
(四)承租方不得经营重油烟、明火的商品。经营范围不超过咖啡、饮料、糕点、轻食类范围;
(五)厨余垃圾需单独清理或请专业机构定期清理,排水口设置油污过滤装置,不得堵塞排水系统,随时保持场地清洁卫生干净整洁;
(六)承租方如需装修改动,进场前需提交装修装饰方案,经重庆市璧山区文化和旅游发展委员会同意后才能实施,装修装饰效果应与城市书房相匹配;为了不影响城市书房正常开放,装修期间噪声作业内容需夜间施工;
(七)承租方负责城市书房每天的开关门、电源、以及书房秩序,并向读者提供图书馆业务咨询服务。
四其他
(一)承租方不得擅自售卖招租方案内容以外的商品,包括但不限于图书、烟酒等商品。
(二)承租方不得擅自承接任何类型的活动,并且对整个城市书房意识形态负责。
(三)其销售商品需征得重庆市璧山区文化与旅游发展委书面同意。
(四)该书房的日常安全由承租方负责。
(五)合同期间承租方不得擅自转租。
(六)未尽事宜由双方协商解决。
详情咨询:谢老师(17318273872)、彭老师(133 9988 1000)
(水吧尺寸图)

渝公网安备 50022702000145号